Welcome Packet
$0 USD
Your welcome packet includes:
- A brief description of the services that we currently offer
- Instructions to access your client portal
- How to measure your room
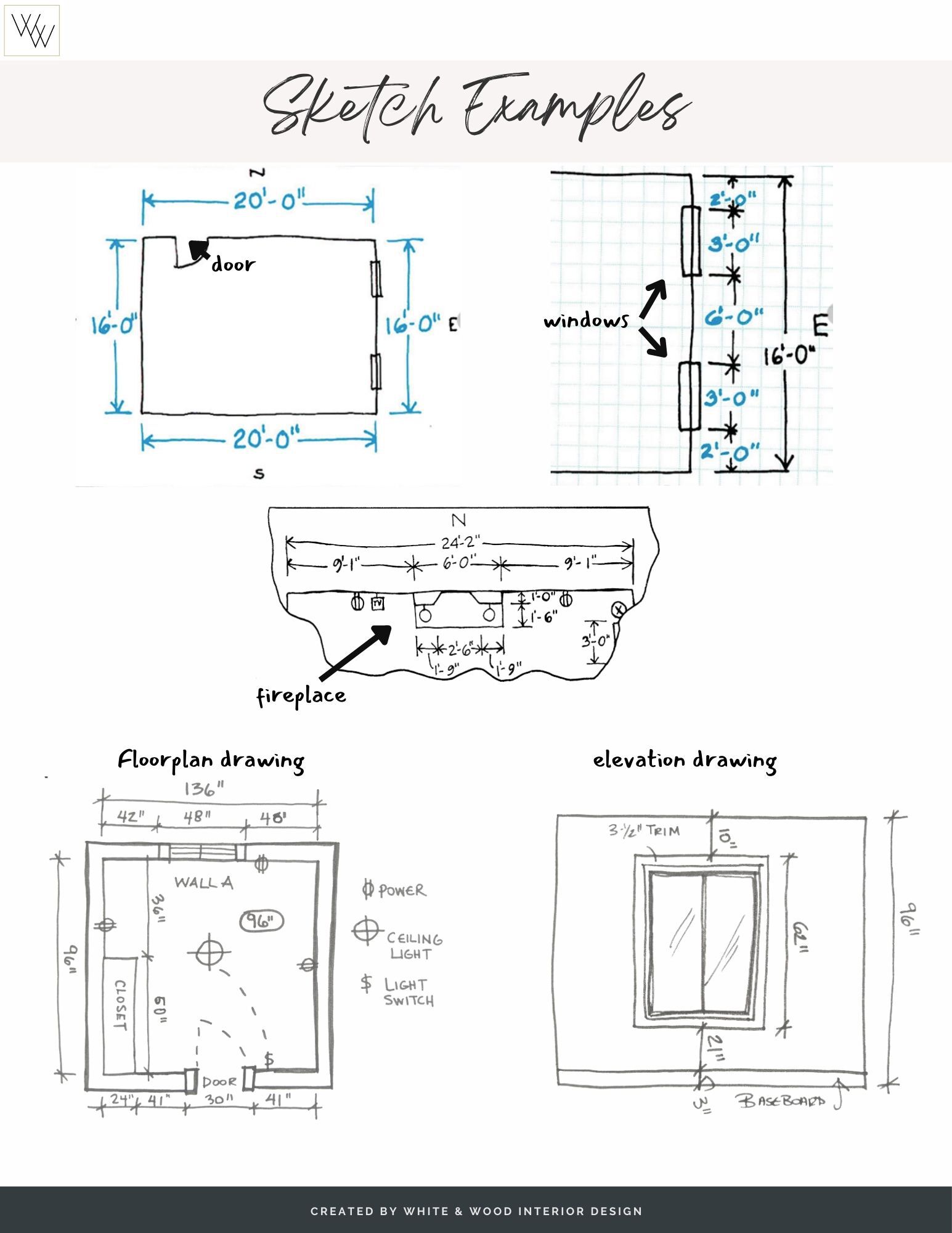
- How to draw a simple sketch of your room
- My contact information
- Our Process & TImeline
